China's proposed 'super-embassy' in London has sparked a firestorm of controversy, with security experts warning that the facility could become a hub for espionage targeting Europe.
At the heart of the debate are newly revealed plans that show a secret chamber located perilously close to a critical fibre-optic cable network, which carries vast amounts of financial data between the City of London and Canary Wharf.
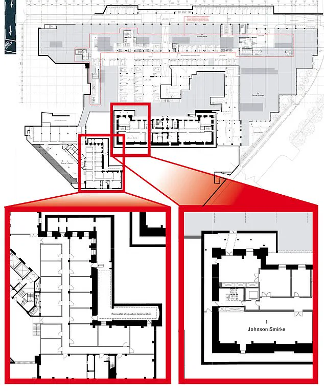
The documents, obtained by a whistleblower and published by media outlets, suggest the hidden room is situated in the north-west corner of the embassy complex, mere metres from the cables that underpin the UK's economic infrastructure.
This proximity has raised alarm bells among intelligence analysts, who argue that the room could be used to intercept or manipulate sensitive communications.
Professor Anthony Glees, a renowned expert in intelligence and security at the University of Buckingham, has been one of the most vocal critics of the project.
In a recent interview with LBC's Nick Ferrari, he described the proposed layout as 'absolutely mad' and warned that the proximity of the secret chamber to the cables makes it a 'gold-plated opportunity' for espionage. 'You can see from the plans how close the rooms run to those cables,' he said. 'They can be tapped very easily.
In my view, this would not just spy on the UK, it would become the Chinese intelligence hub for the whole of Europe.' Glees emphasized that the room's dimensions and the presence of heating systems suitable for large servers suggest it could house advanced surveillance equipment, potentially allowing China to monitor not only British but also European financial and governmental communications.
The concerns extend beyond the physical proximity of the chamber to the cables.
The sheer scale of the embassy complex, which is set to be built on the former Royal Mint site in Nine Elms, has also drawn scrutiny.
Critics argue that the size of the facility could be used to intimidate and detain critics of the Chinese government.

This fear is not unfounded, as it echoes a 2022 incident in Manchester, where a Hong Kong democracy protester was allegedly dragged into the Chinese consulate and assaulted by staff.
Professor Glees cited this incident as evidence of the potential for the embassy to become a tool of coercion, not just surveillance.
The controversy has also drawn the attention of UK politicians, with a group of Labour MPs urging Prime Minister Keir Starmer to reject the embassy plans.
In a letter to Communities Secretary Steve Reed, the MPs expressed deep concerns about the security implications of the project.
They argued that the embassy could be used to 'step up intimidation' against dissidents and cited China's recent history of espionage, interference, and bounties offered against UK-based Hong Kongers.
Sarah Champion, a member of parliament's Joint Committee on the National Security Strategy, stated that the concerns are 'significant and unresolved,' emphasizing that the embassy's location above sensitive infrastructure could pose a direct threat to the UK's economic and national security.
Despite the mounting pressure, the UK government has maintained that national security issues related to the planning application have been 'considered and addressed.' In a statement, the Prime Minister's official spokesman reiterated that the decision on the embassy would be made by the Secretary of State for Housing, Communities and Local Government, as part of a quasi-judicial process. 'National security is the first duty of any government,' the spokesman said, adding that the process had been 'core priority throughout this process.' However, the government has not provided further details on how these security concerns were addressed, leaving critics to question the adequacy of the measures taken.
The plans for the secret chamber itself have been described as a triangular room measuring up to 40 metres across and 2-3 metres deep.

While the exact purpose of the space remains unclear, its size and location suggest it could be used for a range of activities, from data interception to housing advanced surveillance technology.
The revelation of the chamber has only intensified the debate over whether the UK should allow such a large and potentially dangerous facility to be built in a location so critical to the nation's infrastructure.
As the planning decision looms, the eyes of the world will be watching to see whether the UK can balance its diplomatic relations with China against the imperative to safeguard its national security.
Beneath the bustling streets of London's City of London, a quiet but potentially seismic battle is unfolding—one that could redefine the balance between diplomacy and national security.
At the heart of the controversy lies the proposed new Chinese embassy, set to be constructed on the historic site of the Royal Mint, pending approval from Prime Minister Sir Keir Starmer.
According to The Telegraph, the plans reveal a network of 208 secret rooms, many of which are hidden from public view in planning documents.
Among these, two air extraction systems have sparked particular concern, suggesting the facility could house heat-generating equipment such as high-performance computers.
This detail has only deepened fears that the embassy might serve purposes far beyond traditional diplomatic functions.
The site, which China acquired in 2018 for £255 million from the Crown Estate, sits in a location of immense strategic significance.

It is surrounded by critical infrastructure, including the highly sensitive underground communications cables along Mansell Street.
These cables, owned by major firms like BT, Colt Technologies, and Verizon, carry communications for financial institutions in the City of London and Canary Wharf, as well as data centers including the London Stock Exchange.
The proximity of the proposed embassy to these vital networks has raised immediate red flags among security experts and lawmakers.
MPs from across the political spectrum have united in their opposition to the project, citing grave security concerns.
Critics argue that the embassy's design—particularly the inclusion of unlabelled basement rooms and a tunnel, as revealed in redacted planning documents—could facilitate espionage activities.
The Mail on Sunday previously exposed the existence of so-called 'spy dungeons,' with the purpose of these rooms deliberately obscured for 'security reasons.' This has only fueled speculation that the facility might double as a hub for intelligence operations, potentially allowing China to intercept or monitor sensitive communications.
The potential for espionage has been amplified by the physical layout of the site.
Documents show that the outer wall of a chamber adjacent to the cables would be demolished and rebuilt, a move that security expert Professor Alan Woodward has called a 'red flag.' He warned that such proximity would create an 'enormous temptation' for China to exploit the infrastructure for surveillance purposes.

This concern is further compounded by the revelation that the embassy's 'spy campus' would provide on-site accommodation for over 200 intelligence officers, suggesting a level of operational integration that goes far beyond conventional diplomatic missions.
The political stakes have escalated as Downing Street reportedly seeks to fast-track approval of the embassy's plans.
The government aims to secure Prime Minister Starmer's endorsement before his upcoming state visit to China, a move intended to ease tensions with President Xi Jinping following a series of planning delays.
However, this timing has drawn sharp criticism from within the UK's own ranks.
Shadow Justice Secretary Robert Jenrick has called the unredacted plans 'shocking,' arguing that no one committed to national security could approve such a proposal.
His remarks underscore the growing divide between those who see the embassy as a diplomatic necessity and those who view it as a potential threat to the UK's sovereignty and security.
China has dismissed allegations that the embassy is a front for espionage, while BT has reiterated its confidence in the 'robust security measures' protecting its assets.
Yet, the controversy shows no signs of abating.
For many, the proposed embassy represents not just a diplomatic outpost but a symbol of a broader struggle between geopolitical interests and the imperative to safeguard critical infrastructure.
As the debate intensifies, the fate of the Royal Mint site—and the future of the UK's relationship with China—hangs in the balance.